Descrizione
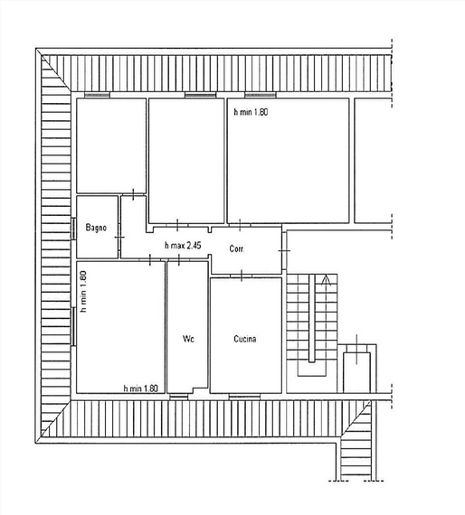
Maietti Immobiliare propone in vendita un esclusivo ultimo piano che unisce il fascino architettonico del sottotetto alla vivibilità di un attico moderno. Grazie a un’altezza minima costante di 1,80 metri lungo tutto il perimetro e un'altezza massima di 2,45 m, ogni ambiente è totalmente calpestabile e permette l'inserimento di arredi e armadiature standard a tutta altezza.
L’immobile, servito da ascensore diretto dal piano seminterrato e dal piano rialzato, si apre su un accogliente corridoio d'ingresso che disimpegna:
Zona Giorno: Ampio e luminoso salone ideale per il relax e cucina abitabile spaziosa per 4-6 persone.
Zona Notte: Tre camere da letto reali, profonde e facili da arredare ( la camera principale è dotata già di 4 armadi a muro ) .
Servizi: Doppi bagni finestrati, uno dotato di vasca , arredato con ampi armadi a muro , l’altro , di servizio , con box doccia e funzionale angolo lavanderia.
L'appartamento gode di una splendida vista panoramica ed è completato da pertinenze introvabili: un garage privato , il più comodo di tutto il condominio per la sua posizione , oltre a un ulteriore posto auto assegnato nel cortile condominiale.
Una soluzione rara per chi cerca indipendenza, riservatezza , grandi volumi senza rinunciare alle comodità di un appartamento tradizionale e vicinanza con il centro , raggiungibile in pochi minuti a piedi evitando il traffico cittadino , soprattutto nelle ore di punta


























