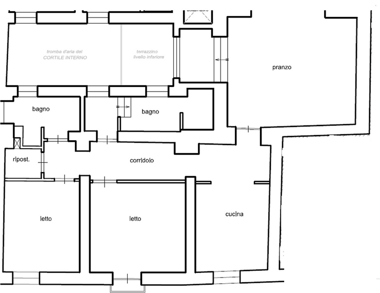
Descrizione
Centralissimo , in palazzo storico recentemente restaurato , situato nel cuore del capoluogo matesino , proponiamo in locazione al piano secondo , appartamento con annesso posto auto nel cortile interno della struttura . L’appartamento è composto da un grande salone d’ingresso , cucina , due camere da letto , due bagni ed un ripostiglio .
























