Descrizione
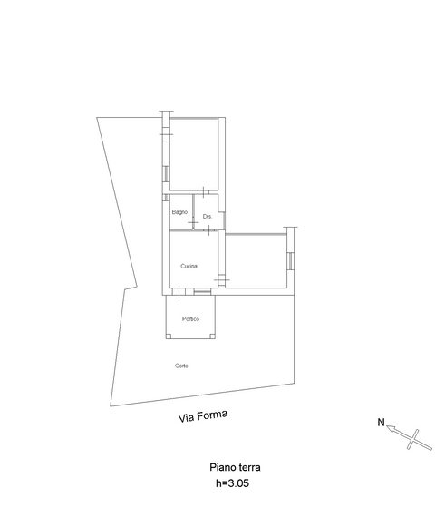
GRAZIOSA casa indipendente a schiera , situata nella frazione di San Michele di Alife , in prossimità della Strada Provinciale 149 , quella che collega la zona collinare con il Comune limitrofo di Piedimonte Matese. Il Fabbricato si distribuisce su un unico livello al piano terra , dove troviamo un vano ingresso sala da pranzo con angolo cottura, due camere da letto ed un bagno ; annesso piccolo ma ordinato giardinetto di ca. 140 mq. OTTIMO RAPPORTO QUALITA’ PREZZO































